This style of lift is for special heavy duty vehicles, commonly used for mining and resources vehicles.
Project Name / description
Insert brochure link
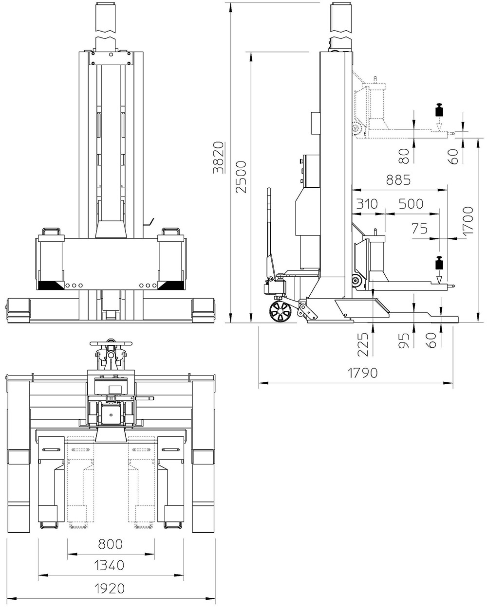
Single Column Lift showing front of unit
Single Column Lift showing back of unit
Column lift wheel fork showing back and wheels

Adjustable wheel fork (open)

Adjustable wheel fork (closed)

Image description....
Master control box with operation elements
Slave control box with operation elements
Mobile column lift showing an aircraft tow tractor
Mobile column lift showing an aircraft tow tractor
MODEL |
EHB715 |
Capacity |
60 Tonne (1 master, 3 slave columns) |
Load Support |
Adjustable forks for wheels 155R13-25.5R25, Ø 550 - 1800 mm |
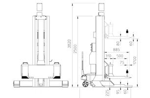
Lifting Stroke |
1700mm |
Speed |
Up 160 sec., Down 110 sec (approx) |
Operation |
Up / Down from each column (all / single) |
Control |
Synchronization of columns, increment control, height tolerance of max. 3 mm |
Control Voltage |
24V DC |
Drive |
Electro-hydraulic. Hydraulic cylinder self-lubricating, cylinder rod encased by steel tube |
Motor |
2.2KW per column |
Connection |
400 V / 3 Ph / 50 Hz, fuse 35 A |
Positioning Wheels |
Hydraulic pallet jack for front and at rear wheels, Ground clearance 100mm, all wheels with sealed roller bearings |
Dimensions |
1675mm (l) x 1920mm (w) x 2500mm (h) per column. Front leg height of 225mm |
Weight |
1800kg per column |
Protection class |
IP65 |
Safety standards |
CE, EN 1493 |